Bifamiliare in vendita

Roccafranca
€ 180.000
4 locali 4 locali
192 Mq 192 Mq
2 bagni 2 bagni

Bifamiliare in vendita

Roccafranca

Descrizione annuncio

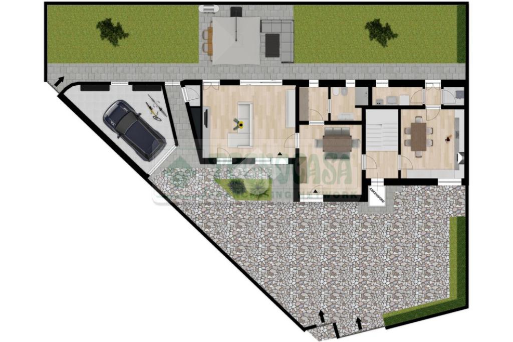
Roccafranca- Villa bifamiliare in classe energetica A4 da ultimare. Libera su 3 lati con carraio autonomo e possibilità di doppio accesso pedonale. Distribuita su 3 piani.
area esterna di circa 270 mq, soggiorno, sala da pranzo, antibagno, bagno, vano scala con accesso all'ascensore, cucina abitabile, disimpegno, lavanderia/loc. caldaia, locale tecnico, portico, garage.
P1°: camera matrimoniale di circa 18 mq con terrazzo, vano scala con accesso all'ascensore, disimpegno, bagno, camera doppia con balcone.
P2°: sottotetto di circa 47 mq utilizzabile come grande camera da letto, studio o stanza hobby.
Finita con: ascensore che collega il piano terra e il 1° piano (già collaudato, da mettere in esercizio), isolamento dei muri perimetrali 'a cappotto' da 14 cm di polistirene con grafite, vespaio areato con igloo + isolamento di 10 cm di poliestere, tetto con isolamento da 14 cm in polistirene con grafite + tegole, predisposizione pannelli fotovoltaici, adeguamento sismico (grado 1) con pareti armate + intonaco interno malta fine 3 mani, scala predisposta per microcemento o resina, marmi esterni posati, impianto di riscaldamento predisposto per radiatori con collettori bivalenti (radiatori o pavimento), predisposizione per caldaia a condensazione o pompa di calore, predisposizione aria condizionata, pavimentazione del sottotetto in SPC effetto legno.
Da finire: impianto elettrico completo (predisposizione domotica), impianto di riscaldamento e raffrescamento, infissi, porte interne, pavimenti, rivestimenti dei bagni, sanitari, esterni.
POSSIBILITÀ DI ACQUISTARLA FINITA A EURO 320.000.

Mostra tutto

Nelle vicinanze

Farmacia Farmacia
Farmacia Grisoli
260 m
Farmacia Vitali Sara
2,3 Km
Negozi Negozi
Guagni
120 m
Bar Bar
Barrasettanta
130 m
Via Vai
140 m
Tropical
410 m
Bar Tabacchi Claro Café
1,6 Km
Bar
1,8 Km
Ristoranti Ristoranti
Il Buongustaio
130 m
Trattoria "S. Antonio"
220 m
Mostra tutto

Caratteristiche

Rif.:
61152855
Piano:
Su più livelli di 3
Totale piani:
3
Box:
1
Balconi:
1
Terrazzi:
1
Mostra tutto
Prezzo Prezzo
€ 180.000
Rata mutuo Rata mutuo
€ 850 / mese
Proponi il tuo prezzoProponi il tuo prezzo
Immobile valutato con T·Valuta

Classe Energetica

A4
A4
A4
A4
A4
A4
A4
A4
A4
EP globale non rinnovabile:
60.89 kW h/m² anno
EP globale rinnovabile:
100.91 kW h/m² anno
EP invernale del fabbricato:
EP estiva del fabbricato:
Anno di costruzione:
1967

Ti interessa visionare l'immobile?

Fissa un appuntamento  Fissa un appuntamento

Richiedi informazioni

Clicca su Leggi per aprire l'informativa
* Questi campi sono obbligatori

Calcola il tuo mutuo

Semplice e senza impegno
Anticipo

( % )
Mutuo

( % )

pochi semplici passi

inserisci i tuoi dati
Questionario completato
Grazie per aver richiesto un appuntamento senza impegno con un nostro Consulente del Credito e Assicurativo.

Hai inserito correttamente tutti i dati necessari e a breve riceverai una e-mail con un link da convalidare per inviare i tuoi dati.
Affiliato
Agenzia Immobiliare Urago D'Oglio Snc
Via Caduti, 2/b 25030 Rudiano (BS)
Via Caduti, 2/b 25030 Rudiano (BS)
Zona: Urago d'Oglio-Roccafranca-Comezzano-Cizzago-Calcio-Pumenengo-Rudiano
Mostra su mappa
Orari: lun-ven 09:30 - 12:30 14:30 - 20:00 sab. mattina 09:30 - 12:30consigliato l' appuntamento
Affiliato
Agenzia Immobiliare Urago D'Oglio Snc
Via Caduti, 2/b 25030 Rudiano (BS)

2025 Tecnocasa Franchising S.p.A. - P. IVA 08365160152 - Via Monte Bianco 60/A 20089 Rozzano (MI). Ogni agenzia ha un proprio titolare ed è autonoma. Privacy policy | Policy utilizzo | Cookie policy